Günter Pfeifer
Aktuelles
Philosophie
Architektur
Forschung
Publikation
CV / Kontakt
Links
Home
Wohnen
Kultur
Industrie & Gewerbe
Bildung
Verwaltung
Begegnungen
Wettbewerbe
Projekte
Seniorenwohnen im Park, Düren
Anschlussunterbringung Kirchzarten
New Town Hall for Prague
Moschee und Kulturzentrum Heilbronn
Christuskirche Freiburg
Sukhavati Spiritual Care Center, Bad Saarow
Internationale Bauausstellung Berlin
Schauspielhaus Basel
Internatsschule Salem
Bundeskanzleramt Berlin
Regierungspräsidium Freiburg
Bürgerhaus Burghof Lörrach
Wohnanlage CEAG Dortmund
Haus der Geschichte Stuttgart
Schauspielhaus
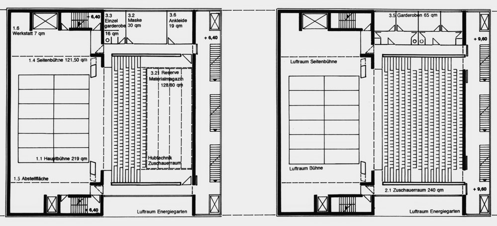
Schauspielhaus Basel

Der urbane Ort mit dem Vorplatz des Theaters und dem
Tingely-Brunnen, sowie die beengten Verhältnisse an der
Theaterstraße sind Anlass, das Raumkonzept des Hauses
introvertiert aufzustellen. Dabei wird ein Teil der vorhandenen
Treppenanlage großzügig ins Foyer des Hauses integriert und
zur öffentlichen Interaktion weitergesponnen. Der darüber
liegende Zuschauerbereich wird von einer räumlichen Kaskade
von Treppen und Foyerräumen begleitet und erweitert den
Platzbereich in die Horizontale.
Schauspielhaus Schauspielhaus Schauspielhaus Schauspielhaus Schauspielhaus
zurück