Günter Pfeifer
Aktuelles
Philosophie
Architektur
Forschung
Publikation
CV / Kontakt
Links
Home
Wohnen
Kultur
Industrie & Gewerbe
Bildung
Verwaltung
Begegnungen
Wettbewerbe
Projekte
Seniorenwohnen im Park, Düren
Anschlussunterbringung Kirchzarten
New Town Hall for Prague
Moschee und Kulturzentrum Heilbronn
Christuskirche Freiburg
Sukhavati Spiritual Care Center, Bad Saarow
Internationale Bauausstellung Berlin
Schauspielhaus Basel
Internatsschule Salem
Bundeskanzleramt Berlin
Regierungspräsidium Freiburg
Bürgerhaus Burghof Lörrach
Wohnanlage CEAG Dortmund
Haus der Geschichte Stuttgart
ceag
CEAG Dortmund Ankauf 1996

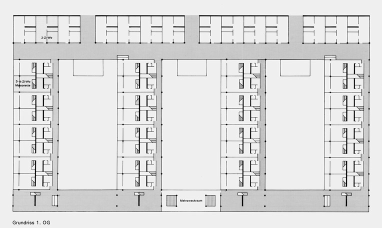
Die Wohnanlage transformiert die alte Idee der
Familistère in Guise, allerdings dieses Mal als
energetisch optimiertes Raumkompendium. Die
Wohnungen in den Gebäuderiegeln sind so zoniert,
dass jeweils in den Höfen die aktiven und passiven
Raumelemente vertreten sind. Die Wohnungen
selbst sind so ausgelegt, dass die Bewohner über
die Zuordnung der Räume entscheiden können.
ceag ceag ceag
zurück