Wohnungen für ältere Menschen
Lachenstr. 1 und 3
79677 Schönau
Fertigstellung: 1987
Bauherr:
Baugenossenschaft
Familienheim Lörrach eG
79539 Lörrach
Entwurf / Planung / Objektüberwachung:
Prof. Günter Pfeifer
Talstraße 1a
79102 Freiburg
mit Thomas Heiß
Team:
Rolf Bühler
Manfred Kunzelmann
Tragwerksplanung:
Greschik + Falk + Partner
79539 Lörrach / 10967 Berlin
Fotos: Hans H. Münchhalfen, CH-Basel
|
 |
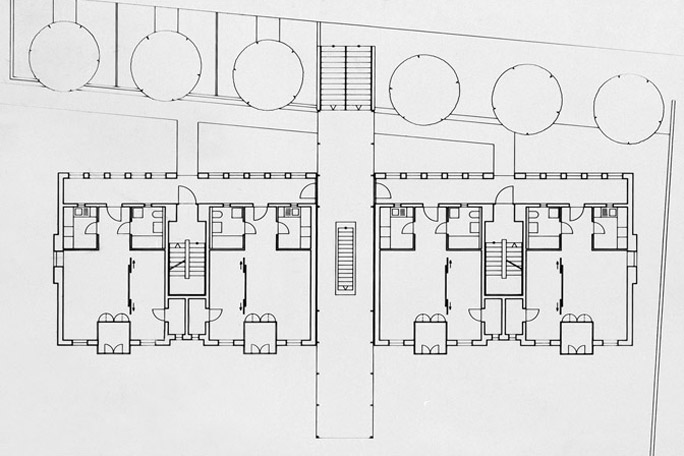
Das einfache Gebäude soll mit se-
niorengerechten Wohnungen aus-
gestattet werden. Eine ökono-
misch strenge Kostenvorgabe er-
laubt es nicht, die Erschließung
nach den Maßstäben der Barri-
erefreiheit vorzunehmen. Des-
halb ist die Erschließung in zwei
Häuser aufgeteilt und wird von
einem mittig angeordneten offe-
nen, aber überdachten Zwischen-
raum inszeniert. Dieser Zwischen-
raum ist einerseits Teil der Identi-
fikation eines besonderen Hauses
und andererseits sommerlicher In-
teraktionsraum. Die ursprüngliche
Idee, den Zwischenraum mit ei-
nem Wintergarten als Gemein-
schaftraum auszustatten, schei-
terte an den Kosten. Vom Zwi-
schenraum aus wird das Oberge-
schoss über einen geschlossenen
Laubengang erschlossen. Die klei-
nen Zweizimmerwohnungen sind
alle mit nach Südwesten ausge-
richteten Wintergärten ausgestattet,
die auch zur passiven solaren Ener-
giegewinnung genutzt werden. Das
große, ziegelgedeckte, einfache
Satteldach mit der sichtbar belasse-
nen Konstruktion im Zwischenraum
ist architektonischer Ausdruck
regionaler Architektur.
|
 |
 |
 |
 |
 |
 |