Wohnanlage Schildackerweg
79115 Freiburg
Fertigstellung: 1991
Bauherr:
Freiburger Stadtbau GmbH
79098 Freiburg
Entwurf / Planung / Objektüberwachung:
Prof. Günter Pfeifer
Talstraße 1a
79102 Freiburg
Team:
Peter M. Bährle
Elke Hudetz
Brigitte Kempf
Roland Mayer
Tragwerksplanung:
Greschik + Falk + Partner
79539 Lörrach / 10967 Berlin
Fotos:
Francesca Giovanelli, CH-Birr
Hannelore Pfeifer, Freiburg
|
 |
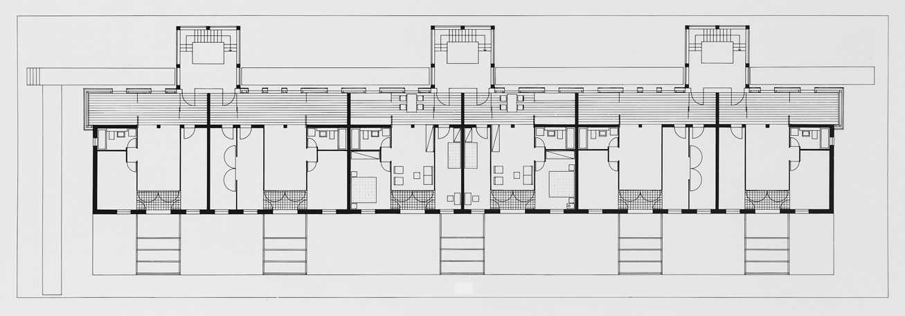
Die ECA-Siedlung ist eine einfache Zeilenbau-
Siedlung aus den 50er Jahren, die um einen
großzügigen Außenbereich gruppiert ist. Die
offene Südostecke der Bebauung wird mit ei-
nem einfachen nach Süden orientierten Gebäu-
deriegel geschlossen. Dem Gebot der Ökono-
mie folgend, sind zwar alle Räume nach Süden
ausgerichtet, sie erreichen jedoch ungewöhn-
liche Raumtiefen. Der Wohn-Essraum öffnet
sich wegen der wohltuenden Aussicht auch
nach Norden. Die grundsätzliche Gebäudezo-
nierung transformiert das alemannische Labo-
rantenhaus, jedoch ohne die Pufferzone real
zu übernehmen. Die konstruktive und formale
Trennung der Pufferzone wird über die durch-
gehende hölzerne Verkleidung transformiert.
Hinter der Holzverkleidung verbirgt sich eine
verstärkte Dämmung. Die Südseite erhielt
eine gleichmäßige Lochfassade, die mit den
größeren Loggienöffnungen eine Rhythmisie-
rung erfährt. Die für den Zweispännertyp not-
wendigen Treppenhäuser werden frei vor die
durchgehende Holzwand gestellt. Die roh be-
lassene, präzis ausgeführte Fertigteilkonstruk-
tion der dreifachen Podesttreppen in den ver-
glasten Treppenhäusern schafft ein urbanes
Ambiente. Die Erdgeschosswohnungen sind
über einen offenen Laubengang barrierefrei
erschlossen. Die behindertengerechten Woh-
nungen im Erdgeschoss erhielten auf der Süd-
seite eine vorgelagerte Terrasse, die sich aus
der Geometrie der darunterliegenden Tief-
garage ergab.
|
 |
 |
 |
 |
 |
 |
 |
 |
 |