Doppelhäuser
79238 Ehrenkirchen
Fertigstellung: 1994
Bauherren: privat
Entwurf / Planung:
Prof. Günter Pfeifer
Talstraße 1a
79102 Freiburg
Team:
Peter M. Bährle
Bettina Schöttle
Objektüberwachung:
Dipl.-Ing. (FH) Klaus Vieser
79104 Freiburg
Tragwerksplanung:
Greschik + Falk + Partner
79539 Lörrach / 10967 Berlin
Fotos:
Francesca Giovanelli, CH-Birr
Hannelore Pfeifer, Freiburg
|
 |
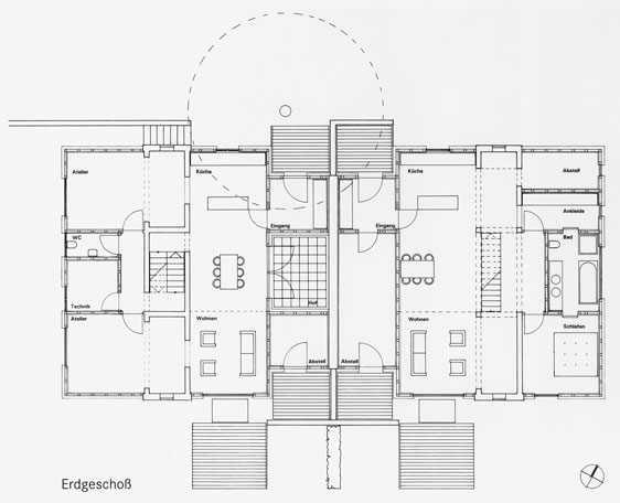
Irgendwann reifte die Idee, den puren Holz-
hauskonstruktionen einen beträchtlichen An-
teil an Speichermassen zuzuordnen, um da-
durch die solaren Energien besser organisie-
ren zu können. So entstand das Konzept, in
der Mitte des Gebäudes einen Lichtschacht
zu bauen und um diesen ein gut gedämmtes
Holzhaus anzuordnen. Der nur 2,00 m breite
gemauerte Schacht erstreckt sich vollständig
über das zweieinhalbgeschossige Haus und
wird auf der Südwestseite vollflächig mit Glas
abgedeckt. In der Mitte des Hauses wurde im
Schacht eine stählerne Treppe mit Gitterrost-
stufen eingebaut.
Die Geschosse sind untereinander im Split-
Level-Versatz angeordnet. Jeder Raum ist mit
einer großen Öffnung an den Schacht direkt
angeschlossen. Damit profitiert er vom Licht,
ergo auch von der eingetragenen Wärme. Der
Schacht selbst ist weiß verputzt und besitzt
am oberen Ende zwei kleine Lüftungsöffnun-
gen, um den Wärmestau mit Durchzug aufzu-
lösen. Die beiden am Schacht angebauten
Holzhausteile enthalten Schlaf- und Arbeits-
räume für ein künstlerisch tätiges Ehepaar
ohne Kinder.
Der eigentliche Charme dieser Arbeit liegt
in der einfachen, jedoch virtuosen Raumdurch-
dringung der unterschiedlichen Räume in
Verbindung mit dem Lichtschacht. Das als
Doppelhaus konzipierte Ensemble wird mit
einem ähnlichen Typ auf der Ostseite des
Grundstücks ergänzt.
|
 |
 |
 |
 |
 |
 |
 |